NEW

THE CUBE HAKOZAKI

5.2万円

管理 / 共益費 3,000円

福岡県福岡市東区箱崎4丁目

福岡市箱崎線「箱崎九大前」駅徒歩5分

鹿児島本線「箱崎」駅徒歩15分

福岡市箱崎線「箱崎宮前」駅バス6分西鉄バス「網屋立筋」停歩5分

賃料
5.2万円
敷金(保証金)
0ヶ月(-)
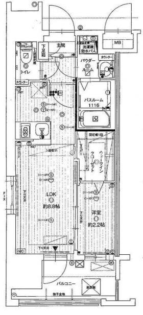
間取り
1R
向き
-
所在地
福岡県福岡市東区箱崎4丁目
管理 / 共益費
3,000円
礼金
1ヶ月
専有面積
21.03㎡
築年月
2021年4月(築4年)
交通

福岡市箱崎線箱崎九大前」駅 徒歩5分

鹿児島本線箱崎」駅 徒歩15分

福岡市箱崎線箱崎宮前」駅 バス6分 西鉄バス「網屋立筋」 停歩5分

物件の特徴

  • バストイレ別

  • 室内洗濯機置場

  • TVモニタ付きインターホン

  • 独立洗面台

  • 浴室乾燥機

  • オートロック

  • ネット使用料無料

セールスポイント

正直この金額で築浅の洗面台独立はもう無いと思ってました。。。

基本情報

保証金
-
敷引 / 償却
- / -
敷金積み増し
-
間取り / 詳細
1R
向き
-
専有面積
21.03㎡
バルコニー
(テラス)面積
-
所在階 / 階建て
1階 / 2階建
建物構造
木造
築年月
2021年4月(築4年)
種別
アパート
保険会社 / 料金
有  18,000円  / 2年
保証会社 / 料金
必加入 / その他
50% 10000円/1年
駐車場
近隣 8,800円 220m
現況
空家
入居可能時期
即時
その他条件
鍵交換代:2万350円  町費:200円(月額)  安心サポート:880円(月額)

設備条件

設備条件
  • デザイナーズ / 室内洗濯機置場 / フローリング / バルコニー / 公営水道 / 公共下水 / 電気有 / 駐輪場 / バイク置場あり / 敷地内ごみ置き場 / ガスコンロ / コンロ2口以上 / システムキッチン / バス・トイレ別 / 追焚機能浴室 / 浴室乾燥機 / 温水洗浄便座 / 独立洗面台 / エアコン / シューズボックス / CS / BS / インターネット対応 / ネット使用料無料 / オートロック / TVモニタ付インターホン / 宅配ボックス / 防犯カメラ / エアコン全室

その他

契約期間
2年
賃貸区分
一般
更新料
-
更新事務手数料
-
総戸数
-
特優賃
-
取引態様
仲介
物件番号
98816561
管理コード
-
情報更新日
2025年11月11日
次回更新予定日
2025年11月18日
備考
失敗しないお部屋探しを信頼のバロックで!コツや落し穴等々すべてお伝えします。天神にお店があるのでお気軽にご来店ください!ご相談だけでも大歓迎!LINEでもやり取り可能です→@341zmpor

周辺施設

  • セブンイレブン 福岡箱崎店の画像

    コンビニエンスストア

    セブンイレブン 福岡箱崎店

    236m(3分)

  • ミニストップ 福岡箱崎3丁目店の画像

    コンビニエンスストア

    ミニストップ 福岡箱崎3丁目店

    421m(6分)

  • ドン・キホーテ楽市街道箱崎店の画像

    ディスカウントショップ

    ドン・キホーテ楽市街道箱崎店

    470m(6分)

  • 箱崎松原郵便局の画像

    郵便局

    箱崎松原郵便局

    561m(8分)

  • マックスバリュ 筥崎宮前店の画像

    スーパー

    マックスバリュ 筥崎宮前店

    873m(11分)

  • 業務スーパー 箱崎駅店の画像

    スーパー

    業務スーパー 箱崎駅店

    1159m(15分)

近隣の物件

  1. Maison de ROKU

    福岡市東区原田1丁目

    2LDK (40.14㎡)

    8.6万円

  2. グランフォーレプライム箱崎

    福岡市東区箱崎1丁目

    1LDK (27.61㎡)

    6.9万円

  3. Litera IBK 香椎東

    福岡市東区下原1丁目

    1LDK (35.03㎡)

    6万円

  4. グランフォーレ箱崎プレミア

    福岡市東区箱崎1丁目

    1LDK (29.62㎡)

    6.7万円

THE CUBE HAKOZAKI

THE CUBE HAKOZAKI

5.2万円

3,000円

1R(21.03㎡)

お気軽にお問い合わせください

LINEからお問い合わせ 無料お問い合わせ

株式会社BAROK

092-717-8777

9:30~18:30

(休:水曜日)